Spoiler
Show
Мастер токарной обработки рога Emil Hopp, Solingen
Издатель: Landschaftsverband Rheinland Rheinisches Industriemuseum
Издание 1986 года
адаптированный гугл-перевод:
Из предисловия:
- В Золингене вплоть до окончания Второй мировой войны доводка столовых приборов до изделия в значительной степени продолжалась не на фабриках, а в небольших ремесленных предприятиях, каждое из которых специализировалось на одной, определенной, части работы. Эти мастерские были разбросаны по всему городу, но сотрудничали, как единое целое, будто это была одна фабрика.
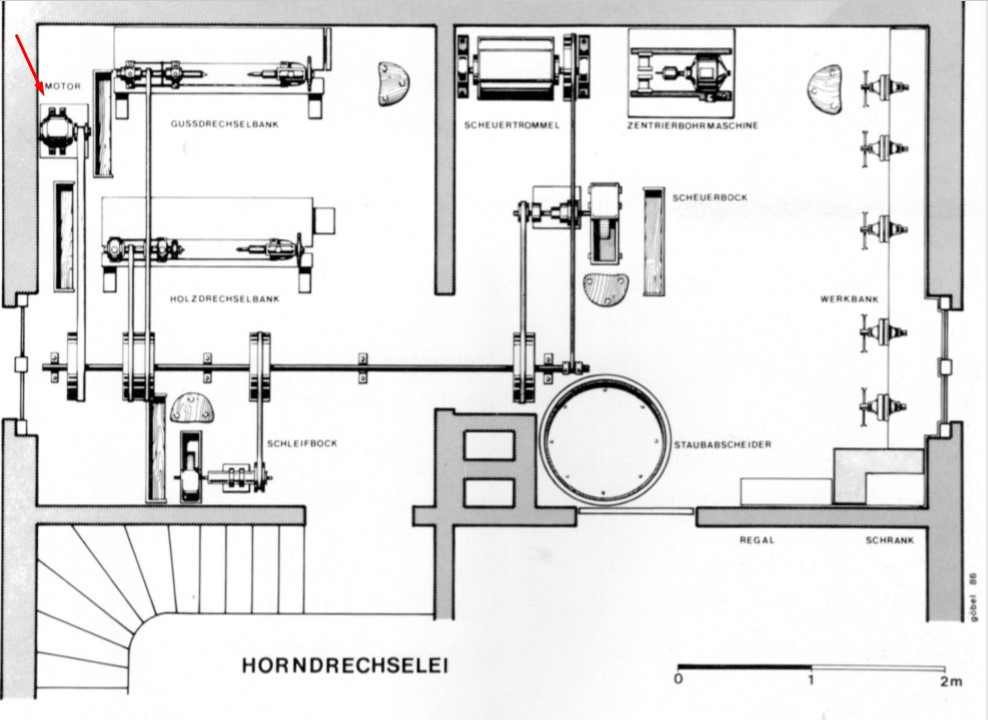
Помимо надомных работников, столпом этого разделённого труда были малые предприятия, такие как мастерская токарной обработки рога Emil Höpp на Eller-Strasse в Solingen-Ohligs.
Jochen Putsch, глава филиала Рейнского промышленного музея, Золинген, ноябрь 1986 г.
Мастерские по токарной обработке кости и рога в Золингене можно, в определенном смысле, рассматривать как поставщика услуг Reiderberufe (сборка стальных изделий, монтаж роговых ручек, плашек, т.е. получение готового изделия), т.к. мастер изготавливал роговые ручки (накладки) для самых разных вещей - от открывалок для бутылок до сложных ножевых изделий.
Накладки из рога теперь используются почти исключительно в коллекционных или дорогих охотничьих ножах, а раньше даже в простой кухонной посуде были ручки из рога. Помимо рога, в мастерских по токарной обработке обрабатывали также дерево, например тик или бамбук. В ручной токарной работе можно выделить следующие операции:
1. Выпрямление еще согнутого рога.
2. Распиливание рога на определенную длину.
3. Обтачивание по шаблону.
4. Высверливание отверстий для сборки.
5. Опиловка
6. Тонкое шлифование (Pliessten) на настольной шлифовальной машине.
7. Чистовая обработка (полировка). При обработке деревянных скоб был добавлен еще один этап - покраска.
- Эмиль Хёпп родился в Золингене 26 февраля 1907 г., в семьи ремесленника по токарной обработке дерева и кости и был одним из последних мастеров Золингена, который работал полный рабочий день в качестве владельца малого бизнеса до 1964 г., а затем до тех пор, пока не исполнилось 75 лет. Даже в пенсионном возрасте продолжал делать разного рода ручки из кости.
Хёпп научился своему делу у своего отца, будучи учеником четыре года (1921-1924). В двадцатые годы г-н Хепп работал со своим отцом и старшим братом в совместной мастерской, оснащенной тремя токарными станками. Мастерская была рядом с квартирой в поместье Garzenhaus, Solingen-Weyer. Семья занималась изготовлением ручек из кости для зонтов. Как и индустрия столовых приборов, производство зонтов в Золингене было организовано в больших масштабах, так что компания Höpp вскоре стала зависимой от одной крупной компании - заказчика. К концу двадцатых годов, когда заказы от зонтичной фабрики пошли на убыль, фирму Хеппа пришлось закрыть. Хёпп - старший (отец) был принят предыдущей контрактной компанией, два брата были вынуждены искать новую работу. Следующие тринадцать лет Эмиль Хёпп работал мастером в небольшой токарной компании, специализирующейся на производстве костяных ручек для ножевой промышленности. Из восьми сотрудников этой компании было пять учеников.
В начале 1941 года г-на Хеппа призвали в армию. За войной последовали три года лишения свободы. Когда Эмиль Хепп вернулся домой в 1948 году, его отец уже начал собственное дело и оборудовал токарный цех на Ellerstrasse в Solingen - Ohligs, который во время войны пустовал.
С начала пятидесятых годов всевозможные предметы повседневного обихода или бартерные изделия, такие как курительные трубки, производились под руководством г-на Э. Хёппа -младшего. Затем компания начала производить костяные ручки исключительно для ножевой промышленности. Эмиль Хёпп смог воспользоваться своим опытом и связями из довоенного периода. Хотя рог уже вышел из моды, у г-на Хёппа было достаточно много работы до глубокой старости; потому что осталось очень мало квалифицированных токарей.
Сырой роговой материал зажимался в тисках и расправлялся. В углу на верстаке печь для нагрева рога. .
Шлифовальный станок. На дне деревянной ёмкости стоял металлический контейнер, в котором находилась паста из измельченной пемзы, мягкого мыла, рапсового масла и воды. При полировке на текстильный полировальный диск для каждой заготовки наносили небольшое количество пасты. ..
Подборка вещей, которые Эмиль Хёпп сделал для личного пользования: И полная версия отсканированной книги. Некоторые фотографии не вошли в обзор.
